Valvă de expansiune electronică încorporată. Motor ventilator DC, cu mai multe viteze de vânt, cu unghi de alimentare cu aer în mai multe etape pentru a crea un flux de aer confortabil.

În condiții de încălzire și răcire, unitatea poate furniza un volum mare de aer pentru a încălzi și răci rapid peste tot camera interioară.



Noile palete pot fi proiectate pentru a se asigura că aparatul de aer condiționat funcționează mai silențios, îmbunătățind confortul general.
Aparatele de aer condiționat montate pe perete au un panou frontal sau un capac care poate fi îndepărtat cu ușurință. Acest lucru se face de obicei cu ajutorul unor butoane sau încuietori. Deschiderea acestui panou vă oferă acces la filtre și la alte piese care pot necesita curățare.

| Specificații | Unități |
MISN- 05X1EV2AD |
MISN- 07X1EV2AD |
MISN- 09X1EV2AD |
MISN- 12X1EV2AD |
MISN- 16X1EV2AD |
MISN- 18X1EV2AD |
MISN- 24X1EV2AD |
MISN- 28X1EV2AD |
MISN- 30X1EV2AD |
| Capacitate | ||||||||||
| Răcire | kW | 1,50 | 2,20 | 2,80 | 3,60 | 4,50 | 5,60 | 7,10 | 8,00 | 9,00 |
| Încălzire | kW | 1,70 | 2,50 | 3,20 | 4,00 | 5,00 | 6,30 | 8,00 | 9,00 | 10,00 |
| Parametrii electrici | ||||||||||
| Alimentare | Ph/V/Hz | 1/220-240/50/60 | ||||||||
| Ventilație | ||||||||||
| Debit de aer (H/M/L) | m3/h | 500/430/370 | 550/480/420 | 600/530/470 | 630/560/500 | 800/720/650 | 920/800/720 | 1010/920/800 | 1500/1400/1300 | 1600/1500/1400 |
| Presiunea acustică (H/M/L) |
dB(A) | 33/31/29 | 35/31/29 | 36/31/29 | 37/33/29 | 39/36/34 | 40/39/35 | 44/40/36 | 48/43/40 | 49/44/41 |
| Putere sonoră (H/M/L) |
dB(A) | 49/46/41 | 50/47/42 | 52/48/44 | 54/51/50 | 56/53/51 | 57/54/52 | 58/56/54 | 60/57/53 | 61/58/54 |
| Instalare - Dimensiuni | ||||||||||
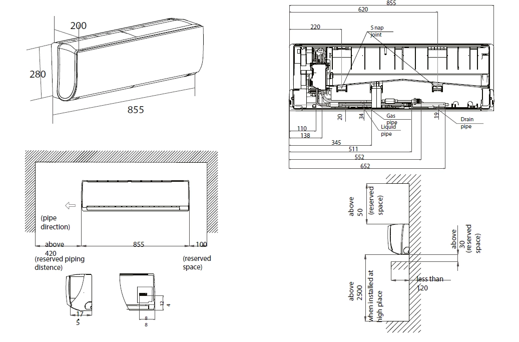
| Dimensiuni nete (WxDxH) |
mm | 855x208x280 | 1115x243x336 | 1316x270x365 | ||||||
| Unitate ambalată dimensiuni (LxDxH) |
mm | 954x279x355 | 1206x342x418 | 1403x384x463 | ||||||
| Greutate netă / brută |
Kg | 9,9/12,0 | 9,9/12,0 | 9,9/12,0 | 9,9/12,0 | 15,8/18,9 | 15,8/18,9 | 15,8/18,9 | 21,8/26,3 | 21,8/26,3 |
| Ø Conducta de lichid | mm (inch) |
6,35 (1/4) | 6,35 (1/4) | 6,35 (1/4) | 6,35 (1/4) | 6,35 (1/4) | 6,35 (1/4) | 9,52 (3/8) | 9,52 (3/8) | 9,52 (3/8) |
| Ø Țeava de gaz | mm (inch) |
9,52 (3/8) | 9,52 (3/8) | 9,52 (3/8) | 12,70 (1/2) | 12,70 (1/2) | 12,70 (1/2) | 15,88 (5/8) | 15,88 (5/8) | 15,88 (5/8) |
MISN-05X1EV2AD MISN-07X1EV1AA MISN-09X1EV2AD MISN-12X1EV2AD

MISN-16X1EV2AD MISN-18X1EV2AD MISN-24X1EV2AD

MISN-28X1EV2AD MISN-30X1EV2AD
